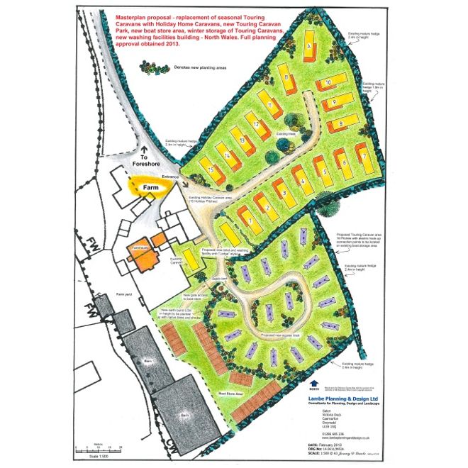
Park Layout Plans
Below are examples of typical Layout Plans & designs prepared by the Directors of Lambe Planning and Design. These are used for planning applications, presentation purposes, construction, advertising, marketing, on park use and banking & investment purposes.
It is particularly important to ensure that plans meet with all current legislation, Model Standards / Site Licence Requirements, and allow for future long term development options and opportunities.











